N° ref 2235432
Terrain à vendre - 201.00m²
Prix : 247 000 €
Description du bien
picto_localiser Grosbous
AFFAIRE À SAISIR à GROSBOUS !!

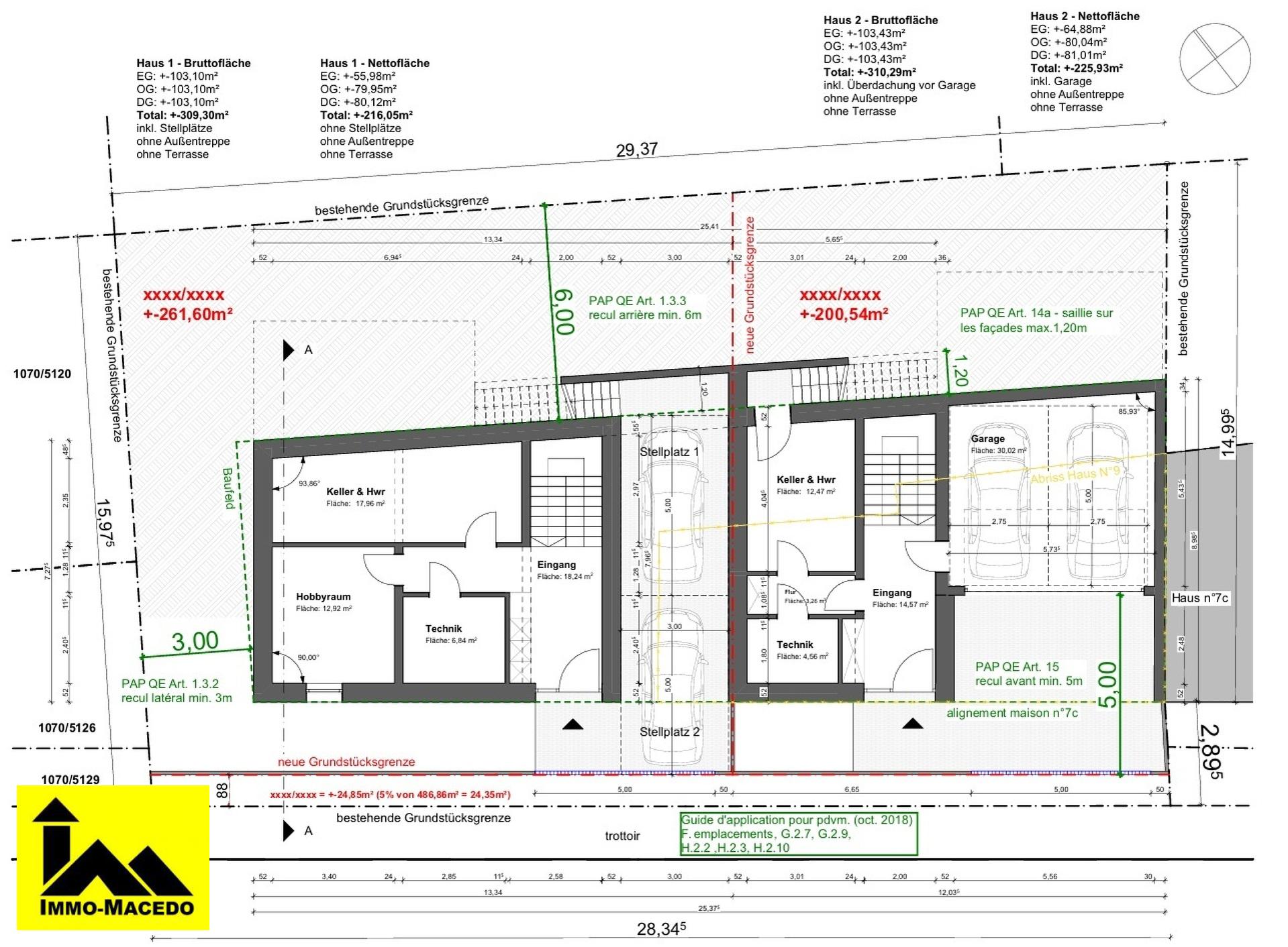
Terrain(s) à bâtir sans contrat de construction pour Maison mitoyenne sur 2,01 ares (à droite) !

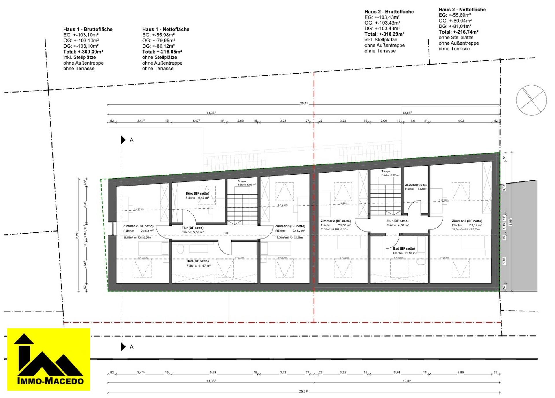
Ce lot est prévu pour une maison unifamiliale de 226 m2 de surface habitable, comprenant:
Hall d'entrée, 3 à 4 chambres (dont 1 suite parentale avec salle de bain/douche), cuisine ouverte sur salle à manger, séjour, Terrasse +/- 20 m2, salle de bain / douche, wc séparé, cave / buanderie, garage double et Jardin ensoleillé.

Sis à +/- 15 min d'Ettelbruck ou Mersch et/ou 30 min de Luxembourg-Kirchberg. Affaire à saisir !!

Ce projet est aussi disponible "clé mains" à 864.000€ avec TVA 3% et terrain déjà inclus dans le prix !
Plans et Cahier de charges sur demande.

Quelle Belle opportunité pour avoir une nouvelle maison avec pompe à chaleur et chauffage au sol !

Si votre immeuble - maison ou appartement - est devenu trop grand ou trop petit ou pour échanger l'ancien par du nouveau contactez-nous !

Immo-Macedo fait des estimations gratuites de votre bien immobilier aussi les weekends sur rdv au 661 85 92 28 !!

- ENG -

GREAT OPPORTUNITY in GROSBOUS !!

Building plot(s) without building contract for Single-family house on 2.01 ares (on the right) !

This lot is intended for a terraced house with 226 m2 of living space, comprising:
Entrance hall, 3 to 4 bedrooms (including 1 master suite with bathroom/shower), kitchen opening onto dining room, living room, Terrace +/- 20 m2, bathroom/shower, separate wc, cellar/laundry room, double garage and sunny garden.

Located +/- 15 min from Ettelbruck or Mersch and/or 30 min from Luxembourg-Kirchberg. Case to seize!

This project is also available "turnkey" at €864,000 with 3% VAT and land already included in the price!
Plans and specifications on request.

What a great opportunity to build a new home with heat pump and underfloor heating!

If your property - house or apartment - has become too big or too small, or if you'd like to swap the old for the new, contact us!

Immo-Macedo also offers free property valuations at weekends by appointment on 661 85 92 28!

- DEUTSCH -

TOLLES ANGEBOT in GROSBOUS !!

Baugrundstück(e) ohne Bauvertrag für ein Einfamilienhaus auf 2,01 Ar (rechts) !

Dieses Grundstück ist für ein Reihenhaus mit einer Wohnfläche von 226 m2 vorgesehen, bestehend aus:
Eingangshalle, 3 bis 4 Schlafzimmer (davon 1 Mastersuite mit Bad/Dusche), offene Küche zum Esszimmer, Wohnzimmer, Terrasse +/- 20 m2, Bad/Dusche, separates WC, Keller / Waschküche, Doppelgarage und sonniger Garten !

Sis +/- 15 min von Ettelbruck oder Mersch und/oder 30 min von Luxemburg-Kirchberg entfernt. Schnäppchen!

Dieses Projekt ist auch "schlüsselfertig" für 864.000€ mit 3% MwSt. und Grundstück bereits im Preis inbegriffen!
Pläne und Lastenheft auf Anfrage.

Was für eine tolle Gelegenheit, ein neues Haus mit Wärmepumpe und Fußbodenheizung zu bekommen!

Wenn Ihr Gebäude - Haus oder Wohnung - zu groß oder zu klein geworden ist oder Sie das alte gegen ein neues austauschen möchten, kontaktieren Sie uns!

Immo-Macedo macht kostenlose Schätzungen Ihrer Immobilie auch am Wochenende nach Vereinbarung unter 661 85 92 28 !!

- POR -

GRANDE NEGÓCIO em GROSBOUS !!

Terreno(s) para construção sem contrato de construção para casa unifamiliar em 2,01 ares (à direita) !

Este lote destina-se a uma casa unifamiliar com 226 m2 de área habitável, composta por:
Hall de entrada, 3 a 4 quartos (incluindo 1 suite principal com casa de banho/chuveiro), cozinha que se abre para a sala de jantar, sala de estar, terraço +/- 20 m2, casa de banho/chuveiro, wc separado, cave / lavandaria, Garagem dupla e jardim ensolarado !

Situada a +/- 15 min de Ettelbruck ou Mersch e/ou a 30 min de Luxemburgo-Kirchberg. Uma pechincha!

Este projeto também está disponível "chave na mão" por 864.000 € com 3% de IVA e terreno já incluído no preço!
Planos e especificações a pedido.

Que grande oportunidade para construir uma nova casa com bomba de calor e aquecimento por piso radiante!

Se a sua propriedade - casa ou apartamento - se tornou demasiado grande ou demasiado pequena, ou se pretende trocar a sua antiga propriedade por uma nova, contacte-nos!

A Immo-Macedo também oferece avaliações imobiliárias gratuitas aos fins-de-semana, mediante marcação prévia através do número 661 85 92 28!
Passeport énergétique
Classe de performance énergétique :
a
Classe d'isolation thermique :
Caractéristiques du bien
Extérieur
  • Surface : 201.00 m²
  • Jardin 
  • Terrasse
  • Terrain : 2.01 ares
Localiser le bien
Partager l'annonce
Ce bien
vous intéresse ?








* Tous les champs sont obligatoires
Voir les biens similaires
494 000 €

Terrain à vendre
 

Voir le bien
247 000 €

Terrain à vendre
 

Voir le bien