
Ettelbruck
2 Nouvelles Maisons de Rapport à vendre, (celle-ci à droite) comprenant:
- 1 Studio (actuellement loué) au RCH avec +/- 32 m2 habitables:
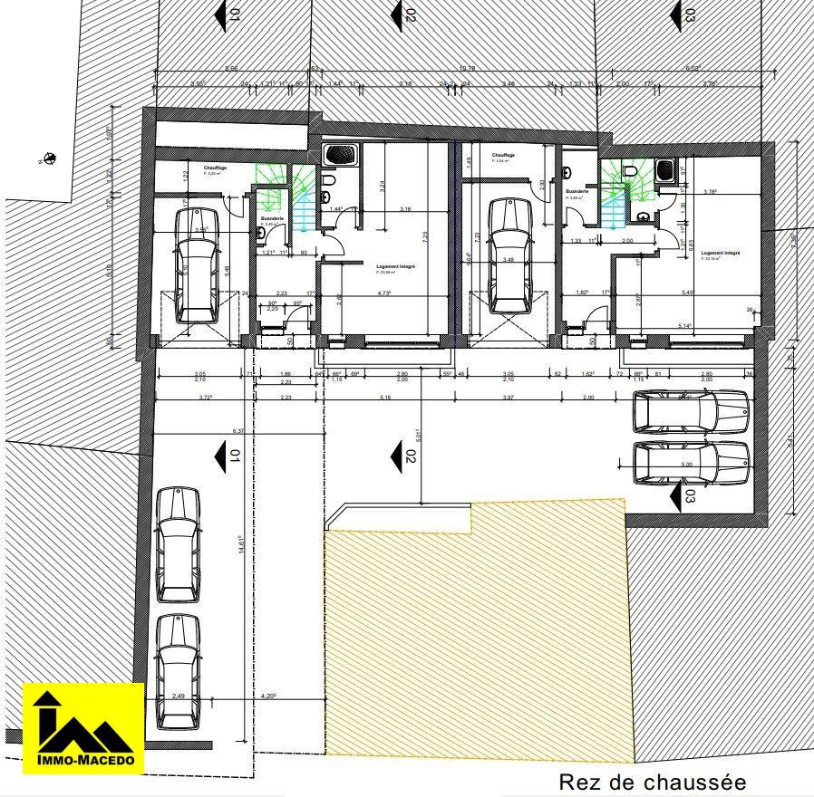
Hall d'entrée (commun) + studio indépendant avec cuisine équipée ouverte sur séjour, coin chambre, salle de douche et parking extérieur pour 1 voiture.
- 1 Duplex (actuellement loué), avec 142 m2 habitables :
Rez-de-chaussée; Hall d'entrée + Garage pour 1 voiture
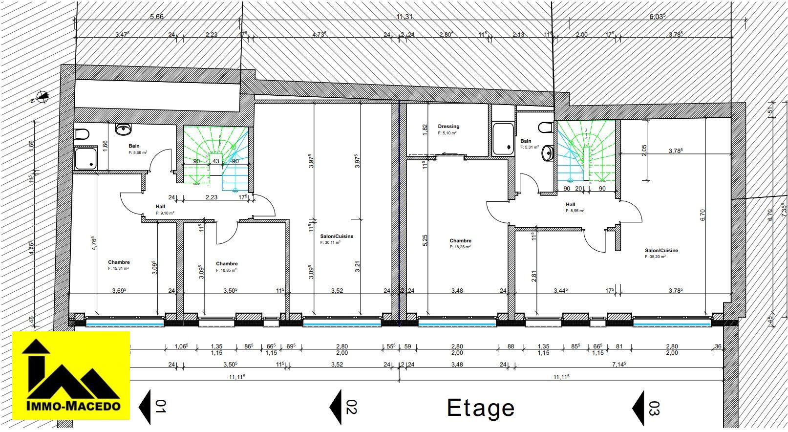
1er étage : Hall, Cuisine ouverte sur salle à manger - séjour, 1 chambre à coucher et 1 salle de Bain / douche.
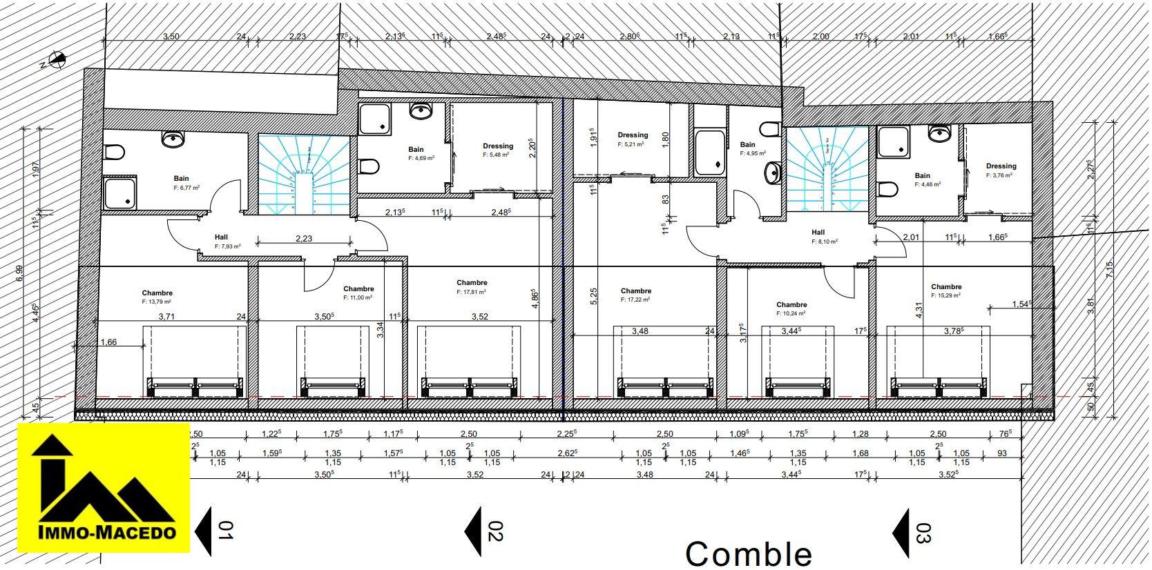
2ème étage : Hall, 3 chambres et salle de Bain / douche séparée.
Plus de photos, sur demande / bientôt disponibles...
Affaire à saisir au centre-ville, près de l'école primaire, lycées, centres hospitaliers, commerciaux, sportifs et de loisirs, piste cyclable, desservi par de grands axes routiers (autoroute A7, gare, city-bus, etc.) et à /- 25 min de Luxembourg-Kirchberg !
Cette maison est très bien isolée pour respecter le passeport énergétique B/C et équipée de fenêtres triple vitrage, chauffage au sol par pompe à chaleur, etc.
Si votre immeuble - maison ou appartement - est devenu trop grand ou trop petit ou pour échanger l'ancien par du nouveau contactez-nous!
Immo-Macedo fait des estimations gratuites de votre bien immobilier aussi les weekends sur rdv au 661 85 92 28 !!
- ENG -
2 new apartment houses to sell, (this one on the right) comprising:
- 1 Studio (currently rented) on the gound floor with +/- 32 m2 living space:
Entrance hall (shared) + independent studio with fitted kitchen opening onto living room, bedroom area, shower room and outdoor parking for 1 car.
- 1 Duplex (currently rented), on 1st + 2nd foors with 142 m2 of living space:
Ground floor; entrance hall + Garage for 1 car
1st floor: Hall, Kitchen opening onto dining room - living room, 1 bedroom and 1 bathroom / shower.
2nd floor: Hall, 3 bedrooms and separate bath/shower room.
More photos, on request / coming soon...
In the city center, close to primary and secondary schools, hospitals, shopping centers, sports and leisure facilities, bicycle path, served by major roads (A7 freeway, train station, city bus, etc.) and /- 25 min from Luxembourg-Kirchberg!
The house is very well insulated to meet B/C energy passport standards, and features triple-glazed windows, underfloor heating by heat pump, etc.
If your property - house or apartment - has become too big or too small, or if you'd like to exchange your old property for a new one, please contact us!
Immo-Macedo also offers free property valuations at weekends by appointment on 661 85 92 28!
- POR -
2 novas casas de apartamentos à venda, (esta, à direita), composta por:
- 1 Estúdio no rés do chão (atualmente alugado) com +/- 32 m2 de área de habitação:
Hall de entrada (partilhado) + estúdio independente com cozinha equipada que abre para a sala de estar, área de quarto, casa de banho e estacionamento para 1 carro.
- 1 Duplex no 1° + 2° andares (atualmente alugado), com 142 m2 de área útil:
Rés do chão: Hall de entrada + Garagem para 1 carro
1º andar: Hall, cozinha que abre para a sala de jantar - sala de estar, 1 quarto e 1 casa de banho / duche.
2º andar: Hall, 3 quartos e casa de banho/duche separada.
Mais fotos, mediante pedido / em breve...
Grande Oportunidade no centro da cidade, perto de escolas primárias e secundárias, hospitais, centros comerciais, centros desportivos e de lazer, ciclovia, servido por grandes eixos rodoviários (autoestrada A7, estação de comboios, autocarro urbano, etc.) e /- 25 min de Luxemburgo-Kirchberg!
Esta casa está muito bem isolada para cumprir o passaporte energético B/C e está equipada com janelas de vidro triplo, piso radiante por bomba de calor, etc.
Se a sua propriedade - casa ou apartamento - se tornou demasiado grande ou demasiado pequena, ou se deseja trocar a sua antiga propriedade por uma nova, contacte-nos!
A Immo-Macedo também oferece avaliações imobiliárias gratuitas aos fins-de-semana, mediante marcação prévia através do número 661 85 92 28!
- DEUTSCH -
2 Neue Mehrfamilienhäuser zu verkaufen, (diese rechts) bestehend aus :
- 1 Studio im Erdgeschoss (momentan vermietet) mit +/- 32 m2 Wohnfläche:
Eingangshalle (gemeinsam) + separates Studio mit offener Küche, Schlafbereich, Duschbad und Parkplatz für 1 Auto.
- 1 Duplex im 1. + 2. Stock, (momentan vermietet), mit 142 m2 Wohnfläche:
Erdgeschoss: Eingangshalle + Garage für 1 Auto
1. Stock: Flur, offene Küche mit Ess- und Wohnzimmer, 1 Schlafzimmer und 1 Badezimmer mit Dusche.
2. Stock: Flur, 3 Schlafzimmer und separates Bad / Dusche.
Weitere Fotos auf Anfrage / in Kürze verfügbar ...
Schnäppchen im Stadtzentrum, in der Nähe von Grundschulen, Gymnasien, Krankenhäusern, Einkaufs-, Sport- und Freizeitzentren, Fahrradweg, Anbindung an Hauptverkehrsstraßen (Autobahn A7, Bahnhof, City-Bus, etc.) und /- 25 Min. von Luxemburg-Kirchberg entfernt!
Dieses Haus ist sehr gut isoliert, um den Energiepass B/C einzuhalten, und mit dreifach verglasten Fenstern, Fußbodenheizung durch Wärmepumpe, etc. ausgestattet.
Wenn Ihr Gebäude - Haus oder Wohnung - zu groß oder zu klein geworden ist oder wenn Sie Ihr altes Gebäude gegen ein neues eintauschen möchten, kontaktieren Sie uns!
Immo-Macedo macht kostenlose Schätzungen Ihrer Immobilie auch an Wochenenden nach Vereinbarung unter 661 85 92 28!